Maîtrise d’œuvre VRD
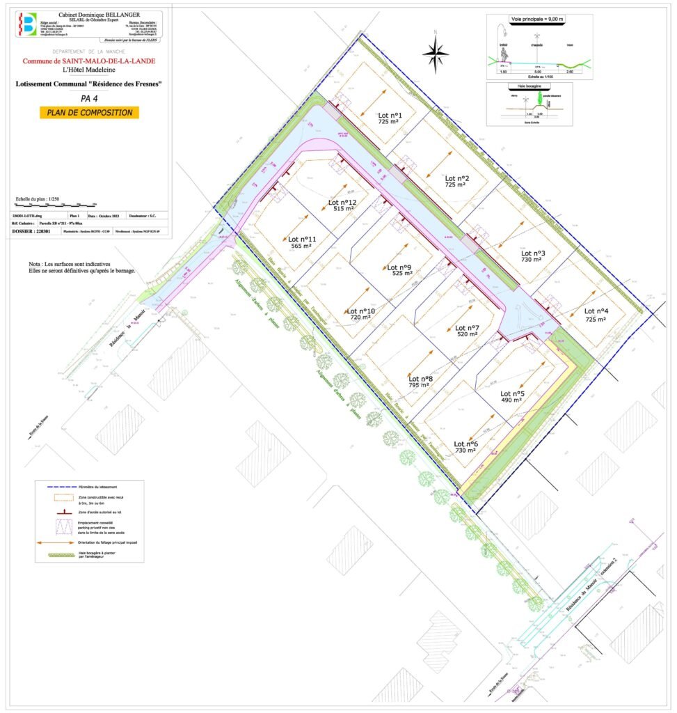
Réalisation d’un lotissement à Saint-Malo-de-la-Lande (2025-2026)
À Saint-Malo-de-la-Lande, le Cabinet BELLANGER assure la maîtrise d’œuvre complète du lotissement communal « Résidence des Fresnes », dont la livraison est prévue en 2025 ou 2026.







Ce projet de 12 lots, situé à proximité du bourg, vise à offrir de nouvelles opportunités de logement tout en s’intégrant harmonieusement dans l’environnement existant. Le cabinet intervient sur l’ensemble des phases : études préalables, conception des voiries et réseaux, coordination administrative, suivi de chantier et division parcellaire. Une attention particulière est portée à la gestion des eaux pluviales et à la qualité des aménagements paysagers, afin de garantir un cadre de vie agréable et durable pour les futurs habitants.
Nos autres réalisations
Réalisation d’un lotissement à Moyon-Villages (2024)
Maîtrise d'œuvre VRD Réalisation d’un lotissement à Moyon-Villages (2024) En 2024, le Cabinet BELLANGER a accompagné la commune de Moyon-Villages…
Réalisation d’un lotissement à Saint-Malo-de-la-Lande (2025-2026)
Maîtrise d'œuvre VRD Réalisation d’un lotissement à Saint-Malo-de-la-Lande (2025-2026) À Saint-Malo-de-la-Lande, le Cabinet BELLANGER assure la maîtrise d’œuvre complète du…
Réalisation d’un lotissement à Couterne (2024)
Maîtrise d'œuvre VRD Réalisation d’un lotissement à Couterne (2024) En 2024, le Cabinet BELLANGER a piloté la conception, la réalisation…
Réalisation de l’aménagement du bourg de Bény Bocage (2017)
Maîtrise d'œuvre VRD Réalisation de l’aménagement du bourg de Bény Bocage (2017) En 2017, le Cabinet BELLANGER a assuré la…
Maîtrise d’œuvre VRD – Aménagement du Bourg de Landelles-et-Coupigny (2012)
Maîtrise d'œuvre VRD Aménagement du Bourg de Landelles-et-Coupigny (2012) Dans le cadre de la modernisation de ses infrastructures communales, la…
Maîtrise d’œuvre VRD – Réaménagement du Bourg de Chanu (2015)
Maîtrise d'œuvre VRD Réaménagement du Bourg de Chanu (2015) Dans le cadre du programme d’investissement de la commune de Chanu,…
Relevé topographique et modélisation 3D du Viaduc de la Souleuvre (2023)
Maîtrise d'œuvre VRD Relevé topographique et modélisation 3D du Viaduc de la Souleuvre (2023) Dans le cadre du développement d’une…
Maîtrise d’œuvre VRD – Lotissement communal de Roullours (2025)
Maîtrise d'œuvre VRD Lotissement communal de Roullours (2025) En lien avec la commune de Roullours, le Cabinet BELLANGER a assuré…
Un projet ? Échangeons
Vous recherchez un géomètre-expert ? Faites confiance à notre savoir-faire. Situés à Vire Normandie et Flers, notre cabinet propose ses services en Normandie, dans les départements du Calvados, de l’Orne ou encore de La Manche.